相模原市中央区・緑区・橋本エリアの売買&賃貸不動産物件情報リビングホーム

リビングホームマスコット 有限会社リビングホーム

042-770-6050

[営業時間] 9:00~18:00 [定休日] 水曜日

最終更新: 2022年2月28日

トップページ › 横浜市港北区 › 競売1014・新横浜駅徒歩6分!クリオ新横浜壱番館3階2LDKの物件詳細

  • 最近見た物件
  • お気に入り物件

競売1014・新横浜駅徒歩6分!クリオ新横浜壱番館3階2LDKの物件詳細

競売・駅近クリオ新横浜壱番館3階2LDK

事件番号:令和07年(ケ)第36号

情報更新日:2025年09月23日

JR横浜線「新横浜」駅徒歩6分横浜市営地下鉄ブルーライン「新横浜」駅徒歩6分の交通も暮らしも便利な立地に明るい南向き間取りのお部屋!
新築に拘らない、少しでも安価に物件を買いたい方におすすめの競売不動産!
競売だからこそのお手頃価格で落札を!!競売物件であっても住宅ローン&リフォームローンのご利用が...
コメントを見る

ここがポイント
  • 新横浜駅徒歩6分の好立地は交通暮らし便利
    H10年築全103戸!明るい南向き間取り
    入札期間:10月07日~7年10月14日
    開札期日:令和07年10月21日
    買受申出保証金 4,670,000円


最寄り駅 徒歩
住所
価格 面積
間取り
種別
築年月
JR横浜線 『新横浜駅』 徒歩6分
神奈川県横浜市港北区新横浜3丁目
2,335万円 専:66.69㎡
間取り:2LDK
マンション
1998年03月
お気に入りにする 印刷用ページ
042-770-6050
お問合せ 空室確認・下見依頼など

【営業時間】9:00〜18:00
【定休日】毎週水曜日・隔週火曜日・GW・夏季休業・年末年始

前へ 新横浜駅クリオ新横浜1番館2LDKマンション物件不動産任意売却競売物件入札サポートリビングホーム 次へ

新横浜駅クリオ新横浜1番館2LDKマンション物件不動産任意売却競売物件入札サポートリビングホーム

拡大する
  • 新横浜駅クリオ新横浜1番館2LDKマンション物件不動産任意売却競売物件入札サポートリビングホーム
  • 新横浜駅クリオ新横浜1番館2LDKマンション物件不動産任意売却競売物件入札サポートリビングホーム
  • 新横浜駅クリオ新横浜1番館2LDKマンション物件不動産任意売却競売物件入札サポートリビングホーム
  • 新横浜駅クリオ新横浜1番館2LDKマンション物件不動産任意売却競売物件入札サポートリビングホーム
  • 新横浜駅クリオ新横浜1番館2LDKマンション物件不動産任意売却競売物件入札サポートリビングホーム
  • 新横浜駅クリオ新横浜1番館2LDKマンション物件不動産任意売却競売物件入札サポートリビングホーム
  • 新横浜駅クリオ新横浜1番館2LDKマンション物件不動産任意売却競売物件入札サポートリビングホーム
  • 新横浜駅クリオ新横浜1番館2LDKマンション物件不動産任意売却競売物件入札サポートリビングホーム
  • 新横浜駅クリオ新横浜1番館2LDKマンション物件不動産任意売却競売物件入札サポートリビングホーム
  • 新横浜駅クリオ新横浜1番館2LDKマンション物件不動産任意売却競売物件入札サポートリビングホーム
  • 新横浜駅クリオ新横浜1番館2LDKマンション物件不動産任意売却競売物件入札サポートリビングホーム
  • 新横浜駅クリオ新横浜1番館2LDKマンション物件不動産任意売却競売物件入札サポートリビングホーム
  • 新横浜駅クリオ新横浜1番館2LDKマンション物件不動産任意売却競売物件入札サポートリビングホーム
  • 新横浜駅クリオ新横浜1番館2LDKマンション物件不動産任意売却競売物件入札サポートリビングホーム
  • 新横浜駅クリオ新横浜1番館2LDKマンション物件不動産任意売却競売物件入札サポートリビングホーム
  • 新横浜駅クリオ新横浜1番館2LDKマンション物件不動産任意売却競売物件入札サポートリビングホーム
  • 新横浜駅クリオ新横浜1番館2LDKマンション物件不動産任意売却競売物件入札サポートリビングホーム
  • 新横浜駅クリオ新横浜1番館2LDKマンション物件不動産任意売却競売物件入札サポートリビングホーム

物件概要

物件名 競売1014・新横浜駅徒歩6分!クリオ新横浜壱番館3階2LDK
所在地 神奈川県横浜市港北区新横浜3丁目 周辺地図
交通 JR横浜線 『新横浜駅』 徒歩6分 /ブルーライン 『新横浜駅』 徒歩6分
価格 2,335万円
坪単価 ㎡単価
その他料金 物件価格は売却基準額となり、実際の入札・落札価格とは異なります。詳細はお問い合わせください。
入札にあたっては事前に売買基準価格の20%相当の買受申出保証金の納付が必要(落札出来なかった場合は返金)となります。
マンションの場合、滞納管理費がある場合は原則として落札者負担となります。

駐車場
バイク置き場 駐輪場 有り
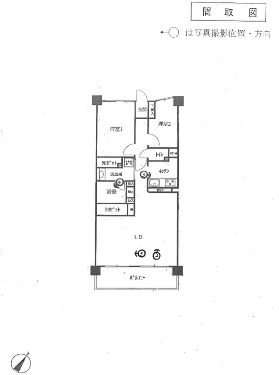
間取り 2LDK 間取り詳細 専有面積
バルコニー面積
専:66.69㎡
バ:9.12㎡
種別/構造 マンション/RC 築年月 1998年03月 引渡し 落札、売却決定後になります。
現況 占有者あり 総戸数/販売戸数 103戸/- 土地権利 所有権
借地料 用途地域 商業地域 地勢 平坦
階部分/階建て 地上3階部分/地上11階建て 主要採光面
設備 シャワー付き洗面化粧台|シャワートイレ|クローゼット|宅配BOX|BSアンテナ|ガスコンロ|システムキッチン|独立型キッチン|給湯|3点給湯|フローリング|バルコニー|オートロック|ディンプルキー|TVモニタ付インタホン|エレベーター|駐輪場|
条件
備考 競売物件の場合には、原則的に建物室内の見学は一切できません。
入居にあたり室内外のリフォームを要す場合があります。(落札者負担)
開札前に債権者の意向により取り下げとなる場合があります
対象物件が賃貸中の場合、引渡しが6ヶ月猶予される場合があります。
競売サポート費用の詳細は以下の「競売不動産購入サポート」をご覧ください。
更新日 2025年09月23日 情報有効期限 2025年10月07日
お問合せ番号 取引形態 仲介
外部リンク 競売不動産購入サポート
管理組合 管理人状況 日勤 管理形態 管理会社に全部委託
管理費 11,940円 うち管理費消費税 修繕積立金 12,400円
管理会社名 明和地所コミュニティー(株)

※各種情報と現状に差異がある場合は、現状優先となります。

お問合せ 空室確認・下見依頼など

物件周辺地図

ページトップ