相模原市中央区・緑区・橋本エリアの売買&賃貸不動産物件情報リビングホーム

リビングホームマスコット 有限会社リビングホーム

042-770-6050

[営業時間] 9:00~18:00 [定休日] 水曜日

最終更新: 2022年2月28日

トップページ › 横浜市磯子区 › 競売1014・根岸駅徒歩3分ソフトタウン根岸弐番館8階2LDKの物件詳細

  • 最近見た物件
  • お気に入り物件

競売1014・根岸駅徒歩3分ソフトタウン根岸弐番館8階2LDKの物件詳細

競売・ソフトタウン根岸弐番館8階2LDK

事件番号:令和06年(ケ)第82号

情報更新日:2025年09月23日

JR根岸線「根岸」駅 東方 約150m駅まで徒歩3分の駅前立地は交通も暮らしも便利!築年数は経過しておりますが管理体制良好。
新築に拘らない、少しでも安価に物件を買いたい方におすすめの競売不動産!
競売だからこそのお手頃価格で落札を!!競売物件であっても住宅ローン&リフォームローンのご利用ができます...
コメントを見る

ここがポイント
  • 根岸駅徒歩3分の駅前立地は暮らしも便利!
    S56年築の南向き2LDKタイプです
    入札期間:10月07日~7年10月14日
    開札期日:令和07年10月21日
    買受申出保証金 3,584,000円


最寄り駅 徒歩
住所
価格 面積
間取り
種別
築年月
JR根岸線 『根岸駅』 徒歩3分
神奈川県横浜市磯子区東町
1,792万円 専:61.6㎡
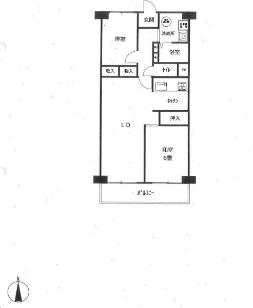
間取り:2LDK
マンション
1981年12月
お気に入りにする 印刷用ページ
042-770-6050
お問合せ 空室確認・下見依頼など

【営業時間】9:00〜18:00
【定休日】毎週水曜日・隔週火曜日・GW・夏季休業・年末年始

前へ 根岸駅ソフトタウン根岸弐番館マンション物件不動産任意売却競売物件入札サポートリビングホーム 次へ

根岸駅ソフトタウン根岸弐番館マンション物件不動産任意売却競売物件入札サポートリビングホーム

拡大する
  • 根岸駅ソフトタウン根岸弐番館マンション物件不動産任意売却競売物件入札サポートリビングホーム
  • 根岸駅ソフトタウン根岸弐番館マンション物件不動産任意売却競売物件入札サポートリビングホーム
  • 根岸駅ソフトタウン根岸弐番館マンション物件不動産任意売却競売物件入札サポートリビングホーム
  • 根岸駅ソフトタウン根岸弐番館マンション物件不動産任意売却競売物件入札サポートリビングホーム
  • 根岸駅ソフトタウン根岸弐番館マンション物件不動産任意売却競売物件入札サポートリビングホーム
  • 根岸駅ソフトタウン根岸弐番館マンション物件不動産任意売却競売物件入札サポートリビングホーム
  • 根岸駅ソフトタウン根岸弐番館マンション物件不動産任意売却競売物件入札サポートリビングホーム
  • 根岸駅ソフトタウン根岸弐番館マンション物件不動産任意売却競売物件入札サポートリビングホーム
  • 根岸駅ソフトタウン根岸弐番館マンション物件不動産任意売却競売物件入札サポートリビングホーム
  • 根岸駅ソフトタウン根岸弐番館マンション物件不動産任意売却競売物件入札サポートリビングホーム
  • 根岸駅ソフトタウン根岸弐番館マンション物件不動産任意売却競売物件入札サポートリビングホーム
  • 根岸駅ソフトタウン根岸弐番館マンション物件不動産任意売却競売物件入札サポートリビングホーム
  • 根岸駅ソフトタウン根岸弐番館マンション物件不動産任意売却競売物件入札サポートリビングホーム
  • 根岸駅ソフトタウン根岸弐番館マンション物件不動産任意売却競売物件入札サポートリビングホーム
  • 根岸駅ソフトタウン根岸弐番館マンション物件不動産任意売却競売物件入札サポートリビングホーム
  • 根岸駅ソフトタウン根岸弐番館マンション物件不動産任意売却競売物件入札サポートリビングホーム
  • 根岸駅ソフトタウン根岸弐番館マンション物件不動産任意売却競売物件入札サポートリビングホーム
  • 根岸駅ソフトタウン根岸弐番館マンション物件不動産任意売却競売物件入札サポートリビングホーム
  • 根岸駅ソフトタウン根岸弐番館マンション物件不動産任意売却競売物件入札サポートリビングホーム

物件概要

物件名 競売1014・根岸駅徒歩3分ソフトタウン根岸弐番館8階2LDK
所在地 神奈川県横浜市磯子区東町 周辺地図
交通 JR根岸線 『根岸駅』 徒歩3分
価格 1,792万円
坪単価 ㎡単価
その他料金 物件価格は売却基準額となり、実際の入札・落札価格とは異なります。詳細はお問い合わせください。
入札にあたっては事前に売買基準価格の20%相当の買受申出保証金の納付が必要(落札出来なかった場合は返金)となります。
マンションの場合、滞納管理費がある場合は原則として落札者負担となります。
駐車場
バイク置き場 駐輪場 有り
間取り 2LDK 間取り詳細 専有面積
バルコニー面積
専:61.6㎡
バ:6.48㎡
種別/構造 マンション/RC 築年月 1981年12月 引渡し 落札、売却決定後になります。
現況 占有者あり 総戸数/販売戸数 73戸/- 土地権利 所有権
借地料 用途地域 商業地域 地勢 平坦
階部分/階建て 地上8階部分/地上10階建て 主要採光面
設備 シャワー付き洗面化粧台|シャワートイレ|トイレ数:1|クローゼット|収納スペース|ガスコンロ|システムキッチン|独立型キッチン|給湯|3点給湯|フローリング|バルコニー|TVモニタ付インタホン|エレベーター|駐輪場|
条件
備考 競売物件の場合には、原則的に建物室内の見学は一切できません。
入居にあたり室内外のリフォームを要す場合があります。(落札者負担)
開札前に債権者の意向により取り下げとなる場合があります
対象物件が賃貸中の場合、引渡しが6ヶ月猶予される場合があります。
競売サポート費用の詳細は以下の「競売不動産購入サポート」をご覧ください。
更新日 2025年09月23日 情報有効期限 2025年10月07日
お問合せ番号 取引形態 仲介
外部リンク 競売不動産購入サポート
管理組合 管理人状況 日勤 管理形態 管理会社に全部委託
管理費 7,745円 うち管理費消費税 修繕積立金 5,760円
管理会社名 長谷工コミュニティー(株)

※各種情報と現状に差異がある場合は、現状優先となります。

お問合せ 空室確認・下見依頼など

物件周辺地図

ページトップ