相模原市中央区・緑区・橋本エリアの売買&賃貸不動産物件情報リビングホーム

リビングホームマスコット 有限会社リビングホーム

042-770-6050

[営業時間] 9:00~18:00 [定休日] 水曜日

最終更新: 2022年2月28日

トップページ › 愛甲郡愛川町 › 競売1211・愛川町半原陽当たり良好な南道路面4LDK一戸建ての物件詳細

  • 最近見た物件
  • お気に入り物件

競売1211・愛川町半原陽当たり良好な南道路面4LDK一戸建ての物件詳細

競売・愛川町半原4LDK一戸建て

事件番号:令和07年(ケ)第54号

情報更新日:2025年11月17日

小田急小田原線「本厚木」駅 北西方 約16km「原臼」バス停 徒歩約7分「たからや前」バス停徒歩約4分
緑多い住環境の街区に建つH22年築4LDK建物。陽当たり良好な南側道路面
新築に拘らない、少しでも安価に物件を買いたい方におすすめの競売不動産!
競売だからこそのお手頃価格で落札を!!競売物件であっ...
コメントを見る

ここがポイント
  • 本厚木駅バス便の緑多い平坦閑静な住宅街区
    H22年築グルニエ付4LDK建物は宅地P
    入札期間:12月04日~7年12月11日
    開札期日:令和07年12月17日
    買受申出保証金 1,480,000円


最寄り駅 徒歩
住所
価格 面積
間取り
種別
築年月
小田急線 『本厚木駅』 バス60分 原臼 停歩7分
神奈川県愛甲郡愛川町半原
740万円 建:100.19㎡
土:130.17㎡
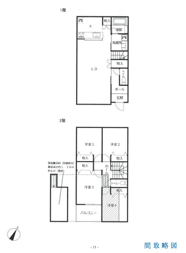
間取り:4LDK
一戸建て
2010年12月
お気に入りにする 印刷用ページ
042-770-6050
お問合せ 空室確認・下見依頼など

【営業時間】9:00〜18:00
【定休日】毎週水曜日・隔週火曜日・GW・夏季休業・年末年始

前へ 小田急線本厚木駅愛川町半原一戸建て物件不動産任意売却競売物件入札サポートリビングホーム 次へ

小田急線本厚木駅愛川町半原一戸建て物件不動産任意売却競売物件入札サポートリビングホーム

拡大する
  • 小田急線本厚木駅愛川町半原一戸建て物件不動産任意売却競売物件入札サポートリビングホーム
  • 小田急線本厚木駅愛川町半原一戸建て物件不動産任意売却競売物件入札サポートリビングホーム
  • 小田急線本厚木駅愛川町半原一戸建て物件不動産任意売却競売物件入札サポートリビングホーム
  • 小田急線本厚木駅愛川町半原一戸建て物件不動産任意売却競売物件入札サポートリビングホーム
  • 小田急線本厚木駅愛川町半原一戸建て物件不動産任意売却競売物件入札サポートリビングホーム
  • 小田急線本厚木駅愛川町半原一戸建て物件不動産任意売却競売物件入札サポートリビングホーム
  • 小田急線本厚木駅愛川町半原一戸建て物件不動産任意売却競売物件入札サポートリビングホーム
  • 小田急線本厚木駅愛川町半原一戸建て物件不動産任意売却競売物件入札サポートリビングホーム
  • 小田急線本厚木駅愛川町半原一戸建て物件不動産任意売却競売物件入札サポートリビングホーム
  • 小田急線本厚木駅愛川町半原一戸建て物件不動産任意売却競売物件入札サポートリビングホーム
  • 小田急線本厚木駅愛川町半原一戸建て物件不動産任意売却競売物件入札サポートリビングホーム
  • 小田急線本厚木駅愛川町半原一戸建て物件不動産任意売却競売物件入札サポートリビングホーム
  • 小田急線本厚木駅愛川町半原一戸建て物件不動産任意売却競売物件入札サポートリビングホーム
  • 小田急線本厚木駅愛川町半原一戸建て物件不動産任意売却競売物件入札サポートリビングホーム
  • 小田急線本厚木駅愛川町半原一戸建て物件不動産任意売却競売物件入札サポートリビングホーム
  • 小田急線本厚木駅愛川町半原一戸建て物件不動産任意売却競売物件入札サポートリビングホーム
  • 小田急線本厚木駅愛川町半原一戸建て物件不動産任意売却競売物件入札サポートリビングホーム
  • 小田急線本厚木駅愛川町半原一戸建て物件不動産任意売却競売物件入札サポートリビングホーム
  • 小田急線本厚木駅愛川町半原一戸建て物件不動産任意売却競売物件入札サポートリビングホーム

物件概要

物件名 競売1211・愛川町半原陽当たり良好な南道路面4LDK一戸建て
所在地 神奈川県愛甲郡愛川町半原 周辺地図
交通 小田急線 『本厚木駅』 バス60分 原臼 停歩7分 /JR相模線 『上溝駅』 バス60分 原臼 停歩7分
価格 740万円
坪単価 ㎡単価
その他料金 物件価格は売却基準額となり、実際の入札・落札価格とは異なります。詳細はお問い合わせください。
入札にあたっては事前に売買基準価格の20%相当の買受申出保証金の納付が必要(落札出来ない場合は返金)となります。
駐車場 敷地内に有(1台分)
バイク置き場 駐輪場
間取り 4LDK 間取り詳細 グルニエ 建物面積
土地面積
建:100.19㎡
土:130.17㎡
種別/構造 一戸建て/木造 築年月 2010年12月 引渡し 落札、売却決定後になります。
現況 占有者あり 総戸数/販売戸数 -/- 土地権利 所有権
借地料 都市計画 市街化区域 用途地域 準工業地域
地目 宅地 地勢 平坦
接道状況 南側道路に面す
セットバック 主要採光面 私道負担面積
建ぺい率 60% 容積率 200%
設備 追い焚き|浴室乾燥機|シャワー付き洗面化粧台|シャワートイレ|トイレ数:2|床下収納|ガスコンロ|システムキッチン|カウンターキッチン|対面式キッチン|給湯|3点給湯|フローリング|バルコニー|TVモニタ付インタホン|ペアガラス|公営水道|プロパンガス|本下水道|
条件
備考 競売物件の場合には建物室内の見学は一切できません。
入居にあたり室内のリフォームを要す場合があります。(落札者負担)
開札前に債権者により取り下げとなる場合があります
対象物件が賃貸中の場合引渡しが6ヶ月猶予される場合があります。
競売サポート費用の詳細は以下の「競売不動産購入サポート」をご覧ください。
更新日 2025年11月17日 情報有効期限 2025年12月01日
お問合せ番号 取引形態 仲介
外部リンク 競売不動産購入サポート

※各種情報と現状に差異がある場合は、現状優先となります。

お問合せ 空室確認・下見依頼など

物件周辺地図

ページトップ