相模原市中央区・緑区・橋本エリアの売買&賃貸不動産物件情報リビングホーム

リビングホームマスコット 有限会社リビングホーム

042-770-6050

[営業時間] 9:00~18:00 [定休日] 水曜日

最終更新: 2022年2月28日

トップページ › 相模原市緑区 › 競売1210・相模原市緑区相原6丁目4LDK一戸建ての物件詳細

  • 最近見た物件
  • お気に入り物件

競売1210・相模原市緑区相原6丁目4LDK一戸建ての物件詳細

競売・緑区相原6丁目4LDK一戸建て

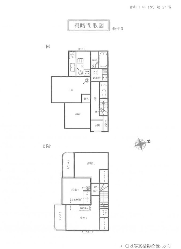
事件番号:令和07年(ケ)第27号

情報更新日:2025年11月20日

JR横浜線「相原」駅 南西方 約1.8km(道路距離)
最寄りバス停「森下」 徒歩約3分の平坦で閑静な住宅街区に建つH17年築4LDK建物は宅地内Pあります。
新築に拘らない、少しでも安価に物件を買いたい方におすすめの競売不動産!
競売だからこそのお手頃価格で落札を!!競売物件であっても住宅ローン&リフォー...
コメントを見る

ここがポイント
  • 横浜線相原駅バス便の平坦で閑静な住宅街区
    H17年築4LDK建物は宅地内Pあります
    入札期間:12月03日~7年12月10日
    開札期日:令和07年12月17日
    買受申出保証金 2,194,000円


最寄り駅 徒歩
住所
価格 面積
間取り
種別
築年月
JR横浜線 『相原駅』 バス9分 相原十字路 停歩5分
神奈川県相模原市緑区相原6丁目
1,097万円 建:76.18㎡
土:96.17㎡
間取り:4LDK
一戸建て
2005年04月
お気に入りにする 印刷用ページ
042-770-6050
お問合せ 空室確認・下見依頼など

【営業時間】9:00〜18:00
【定休日】毎週水曜日・隔週火曜日・GW・夏季休業・年末年始

前へ 横浜線相原駅橋本駅バス相原6丁目一戸建て物件不動産任意売却競売物件入札サポートリビングホーム 次へ

横浜線相原駅橋本駅バス相原6丁目一戸建て物件不動産任意売却競売物件入札サポートリビングホーム

拡大する
  • 横浜線相原駅橋本駅バス相原6丁目一戸建て物件不動産任意売却競売物件入札サポートリビングホーム
  • 横浜線相原駅橋本駅バス相原6丁目一戸建て物件不動産任意売却競売物件入札サポートリビングホーム
  • 横浜線相原駅橋本駅バス相模原市緑区相原6丁目一戸建て物件不動産任意売却競売物件入札サポートリビングホ
  • 横浜線相原駅橋本駅バス相模原市緑区相原6丁目一戸建て物件不動産任意売却競売物件入札サポートリビングホ
  • 横浜線相原駅橋本駅バス相模原市緑区相原6丁目一戸建て物件不動産任意売却競売物件入札サポートリビングホ
  • 横浜線相原駅橋本駅バス相模原市緑区相原6丁目一戸建て物件不動産任意売却競売物件入札サポートリビングホ
  • 横浜線相原駅橋本駅バス相模原市緑区相原6丁目一戸建て物件不動産任意売却競売物件入札サポートリビングホ
  • 横浜線相原駅橋本駅バス相模原市緑区相原6丁目一戸建て物件不動産任意売却競売物件入札サポートリビングホ
  • 横浜線相原駅橋本駅バス相模原市緑区相原6丁目一戸建て物件不動産任意売却競売物件入札サポートリビングホ
  • 横浜線相原駅橋本駅バス相模原市緑区相原6丁目一戸建て物件不動産任意売却競売物件入札サポートリビングホ
  • 横浜線相原駅橋本駅バス相模原市緑区相原6丁目一戸建て物件不動産任意売却競売物件入札サポートリビングホ
  • 横浜線相原駅橋本駅バス相模原市緑区相原6丁目一戸建て物件不動産任意売却競売物件入札サポートリビングホ
  • 横浜線相原駅橋本駅バス相模原市緑区相原6丁目一戸建て物件不動産任意売却競売物件入札サポートリビングホ
  • 横浜線相原駅橋本駅バス相模原市緑区相原6丁目一戸建て物件不動産任意売却競売物件入札サポートリビングホ
  • 横浜線相原駅橋本駅バス相模原市緑区相原6丁目一戸建て物件不動産任意売却競売物件入札サポートリビングホ
  • 横浜線相原駅橋本駅バス相模原市緑区相原6丁目一戸建て物件不動産任意売却競売物件入札サポートリビングホ
  • 横浜線相原駅橋本駅バス相模原市緑区相原6丁目一戸建て物件不動産任意売却競売物件入札サポートリビングホ
  • 横浜線相原駅橋本駅バス相模原市緑区相原6丁目一戸建て物件不動産任意売却競売物件入札サポートリビングホ
  • 横浜線相原駅橋本駅バス相模原市緑区相原6丁目一戸建て物件不動産任意売却競売物件入札サポートリビングホ
  • 横浜線相原駅橋本駅バス相模原市緑区相原6丁目一戸建て物件不動産任意売却競売物件入札サポートリビングホ
  • 横浜線相原駅橋本駅バス相模原市緑区相原6丁目一戸建て物件不動産任意売却競売物件入札サポートリビングホ
  • 横浜線相原駅橋本駅バス相模原市緑区相原6丁目一戸建て物件不動産任意売却競売物件入札サポートリビングホ

物件概要

物件名 競売1210・相模原市緑区相原6丁目4LDK一戸建て
所在地 神奈川県相模原市緑区相原6丁目 周辺地図
交通 JR横浜線 『相原駅』 バス9分 相原十字路 停歩5分 /JR横浜線 『橋本駅』 バス18分 森の上 停歩9分
価格 1,097万円
坪単価 ㎡単価
その他料金 物件価格は売却基準額となり、実際の入札・落札価格とは異なります。詳細はお問い合わせください。
入札にあたっては事前に売買基準価格の20%相当の買受申出保証金の納付が必要(落札出来ない場合は返金)となります。
駐車場 敷地内に有(1台分)
バイク置き場 駐輪場
間取り 4LDK 間取り詳細 グルニエ 建物面積
土地面積
建:76.18㎡
土:96.17㎡
種別/構造 一戸建て/木造 築年月 2005年04月 引渡し 落札、売却決定後になります。
現況 占有者あり 総戸数/販売戸数 -/- 土地権利 所有権
借地料 都市計画 市街化区域 用途地域 第一種低層住居専用地域
地目 宅地 地勢 平坦
接道状況 東側道路に面す
セットバック 主要採光面 私道負担面積
建ぺい率 50% 容積率 80%
設備 追い焚き|シャワー付き洗面化粧台|シャワートイレ|トイレ数:1|クローゼット|床下収納|ガスコンロ|システムキッチン|独立型キッチン|給湯|3点給湯|フローリング|バルコニー|TVモニタ付インタホン|ペアガラス|公営水道|プロパンガス|本下水道|
条件
備考 競売物件の場合には建物室内の見学は一切できません。
入居にあたり室内のリフォームを要す場合があります。(落札者負担)
開札前に債権者により取り下げとなる場合があります
対象物件が賃貸中の場合引渡しが6ヶ月猶予される場合があります。
競売サポート費用の詳細は以下の「競売不動産購入サポート」をご覧ください。
更新日 2025年11月20日 情報有効期限 2025年12月04日
お問合せ番号 取引形態 仲介
外部リンク 競売不動産購入サポート

※各種情報と現状に差異がある場合は、現状優先となります。

お問合せ 空室確認・下見依頼など

物件周辺地図

ページトップ